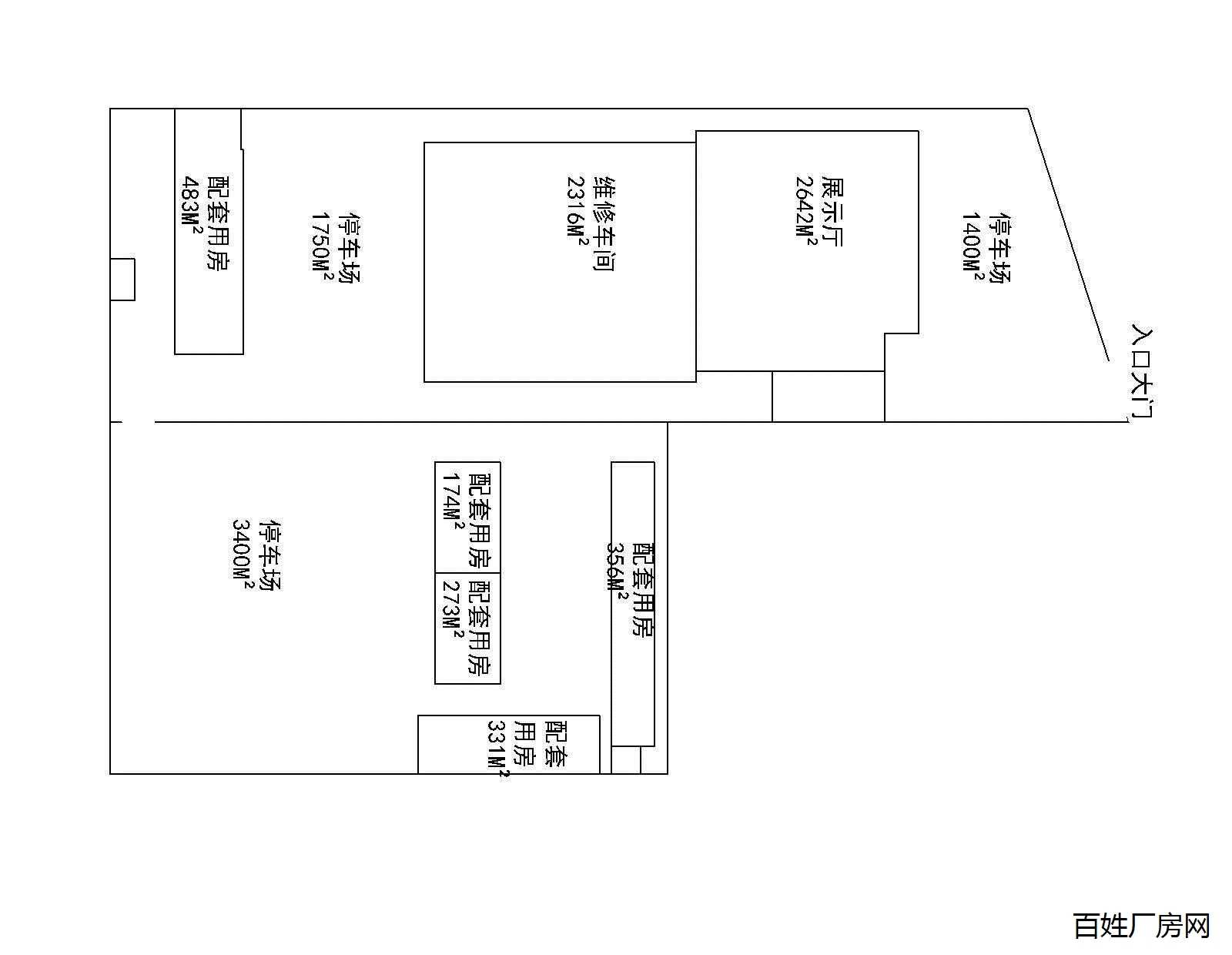
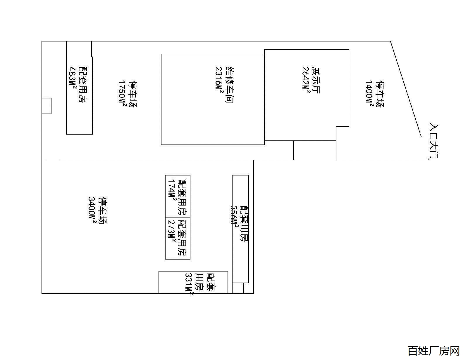
(编号:110325) 原润东雪佛兰4S店招租
|
|||||
| 发布时间: | 2020-08-06 04:32:28 | 房源状态: | 出租中 |
|
|
| 所在区域: | 徐州 / 鼓楼区 | 建筑结构: | 框架结构 | ||
| 厂房面积: | 7000 ㎡ | 车辆出入: | 大型车辆出入 | ||
| 出租价格: | 0 面议 | 配电容量: | KVA | ||
| 办公面积: | ㎡ | 可否分租: | 可以 | ||
| 空地面积: | ㎡ | 是否独院: | 是 | ||
| 所在楼层: | 待完善 层 层高:暂无数据 | 有无货梯: | 有 | ||
| 具体位置: | 鼓楼区-响山路徐州润东瑞景汽车销售服务有限公司 | ||||


浙公网安备 33011002015824号
服务热线:13093751618 服务时间:8:30 - 21:30